1-407-575-5392
Menu

8673 Reymont Street, Orlando, FL

NEXT
PREV
$993,000

($289/sqft)

List Status: Active
8673 Reymont Street
Orlando, FL 32827


5 beds
4 baths
3436 living sqft
Top Features
  • Subdivision: Laureate Park Ph 1c
  • Built in  2018
  • Single Family Residence
Description
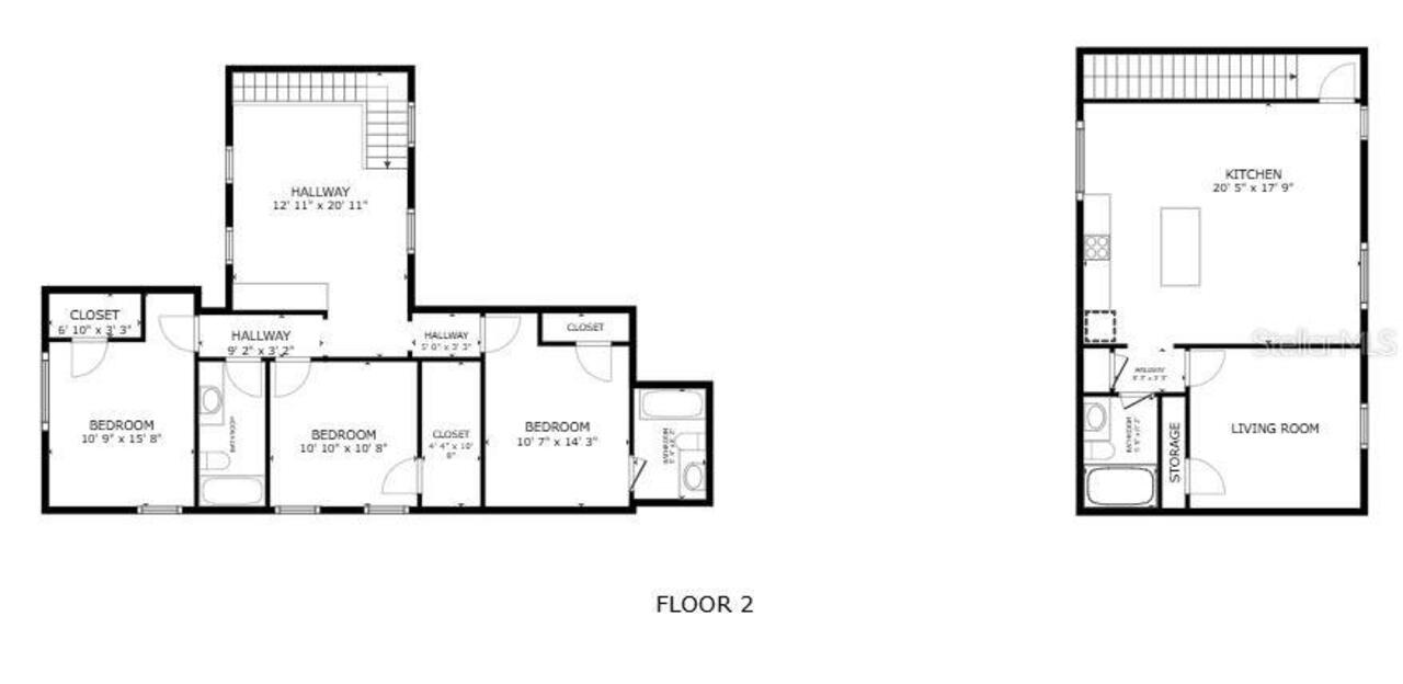
Welcome to this stunning executive Laureate Park home by Ashton Woods, featuring the highly sought-after Anderson floor plan on an estate-sized corner homesite with a rare detached 3-car garage apartment. Ideally located just two blocks from the community’s premier amenities, this home offers the perfect blend of luxury, flexibility, and convenience. A charming front porch welcomes you inside, where hardwood floors span the entire first floor and staircase. The bright, open-concept layout is filled with natural light and highlighted by soaring ceilings in the family room, creating an elegant and airy atmosphere. The chef-inspired kitchen showcases ceiling-height gray shaker cabinetry with soft-close drawers, quartz countertops, a modern glass subway tile backsplash, a spacious center island, and built-in stainless steel appliances—perfect for both everyday living and entertaining. A versatile sunroom off the family room offers the ideal space for a formal dining area or relaxing retreat. The first-floor primary suite is a private sanctuary, featuring a spa-like bath with dual vanities, floor-to-ceiling tile, a frameless glass rain shower, and a large walk-in closet. Upstairs, you’ll find a cozy loft along with well-appointed secondary bedrooms, including a mix of shared and en-suite bath layouts. Step outside to enjoy the oversized corner homesite, offering ample space to design your dream outdoor oasis, including room for a pool. The standout feature is the detached 3-car garage apartment, upgraded beyond the standard with luxury laminate flooring, a stylish subway tile backsplash, and a designer bathroom with octagon tile flooring—ideal for guests, in-laws, or income-producing rental potential. Residents of Laureate Park enjoy resort-style amenities including three pools, fitness center, basketball courts, dog parks, playgrounds, scenic trails, and vibrant community events, along with dining at Canvas Restaurant & Market. Conveniently located near top-rated school
Property Details
Additional Information
Additional Lease Restrictions
PLEASE SEE HOA COVENANTS DEEDS AND RESTRICTIONS
Additional Parcels YN
false
Additional Rooms
Loft
Appliances
Built-In Oven, Convection Oven, Cooktop, Dishwasher, Disposal, Dryer, Electric Water Heater, Microwave, Range Hood, Refrigerator, Washer
Approval Process
Buyer to verify all fees and restrictions with the HOA
Architectural Style
Craftsman
Association Amenities
Basketball Court, Cable TV, Fence Restrictions, Fitness Center, Park, Playground, Pool, Trail(s)
Association Approval Required YN
1
Association Email
arivera@artemislifestyles.com
Association Fee
502.95
Association Fee Frequency
Quarterly
Association Fee Includes
Cable TV, Common Area Taxes, Pool, Internet, Recreational Facilities
Association Fee Requirement
Required
Association URL
www.laureateparkhoa.com
Association YN
true
Attached Garage YN
false
Available For Lease YN
1
Bathrooms Total Integer
5
Builder Model
Anderson on Estate Homesite
Builder Name
Ashton Woods
Building Area Source
Public Records
Building Area Total
4722
Building Area Total Srch SqM
438.69
Building Area Units
Square Feet
CDDYN
1
Calculated List Price By Calculated SqFt
289.00
Carport YN
false
Community Features
Deed Restrictions, Fitness Center, Golf Carts OK, Irrigation-Reclaimed Water, Park, Playground, Pool, Sidewalks, Street Lights
Construction Materials
Block, Concrete, Stucco
Cooling
Central Air, Zoned
Country
US
Cumulative Days On Market
5
Current Price
993000.00
Direction Faces
South
Elementary School
Laureate Park Elementary
Exterior Features
Sidewalk, Sliding Doors
Fireplace YN
false
Flood Zone Code
X500
Flood Zone Date
2018-06-20
Flood Zone Panel
12095C0650G
Flooring
Carpet, Ceramic Tile, Hardwood
Foundation Details
Slab, Stem Wall
Furnished
Unfurnished
Garage Dimensions
24x36
Garage Spaces
3
Garage YN
true
Green Energy Efficient
Appliances, HVAC, Insulation, Lighting, Water Heater, Windows
Green Indoor Air Quality
Ventilation
Green Landscaping
Fl. Friendly/Native Landscape
Green Verification Count
1
Green Water Conservation
Drip Irrigation, Irrigation-Reclaimed Water, Low-Flow Fixtures
Heating
Central, Electric, Zoned
High School
Lake Nona High
Homestead YN
1
Interior Features
Ceiling Fans(s), Crown Molding, Eat-in Kitchen, High Ceilings, In Wall Pest System, Kitchen/Family Room Combo, Open Floorplan, Primary Bedroom Main Floor, Solid Surface Counters, Solid Wood Cabinets, Stone Counters, Thermostat, Walk-In Closet(s), Window Treatments
Internet Address Display YN
true
Internet Automated Valuation Display YN
true
Internet Consumer Comment YN
true
Internet Entire Listing Display YN
true
Laundry Features
Inside, Laundry Room
Lease Restrictions YN
1
Levels
Two
List AOR
Sarasota - Manatee
Living Area Meters
319.21
Living Area Source
Public Records
Living Area Units
Square Feet
Lot Features
Corner Lot, City Limits, Oversized Lot, Sidewalk, Paved
Lot Size Acres
0.19
Lot Size Square Feet
8227
Lot Size Square Meters
764
Middle Or Junior School
Lake Nona Middle School
Minimum Lease
1-2 Years
Modification Timestamp
2026-04-13T03:05:11.178Z
Monthly HOA Amount
167.65
New Construction YN
false
Occupant Type
Owner
Other Equipment
Irrigation Equipment
Ownership
Fee Simple
Parcel Number
30-24-31-4850-04-440
Patio And Porch Features
Covered, Front Porch, Rear Porch
Pet Restrictions
PLEASE SEE HOA COVENANTS DEEDS AND RESTRICTIONS.
Pets Allowed
Yes
Planned Unit Development YN
1
Pool Private YN
false
Postal Code Plus 4
7538
Property Condition
Completed
Property Description
Corner Unit
Public Survey Range
31
Public Survey Section
30
RATIO Current Price By Calculated SqFt
289.00
Realtor Info
As-Is, CDD Addendum required, Floor Plan Available
Road Surface Type
Asphalt, Paved
Roof
Shingle
Room Count
10
Security Features
Fire Alarm, Security System, Security System Owned, Smoke Detector(s)
Senior Community YN
false
Sewer
Public Sewer
Showing Requirements
Sentri Lock Box
Status Change Timestamp
2026-04-07T19:25:14.000Z
Tax Annual Amount
17378
Tax Block
00/00
Tax Book Number
00/00
Tax Legal Description
LAUREATE PARK PHASE 1C 78/125 LOT 444
Tax Lot
444
Tax Other Annual Assessment Amount
1549
Tax Year
2025
Total Acreage
0 to less than 1/4
Total Annual Fees
2011.80
Total Monthly Fees
167.65
Township
24
Universal Property Id
US-12095-N-302431485004440-R-N
Unparsed Address
8673 REYMONT ST
Utilities
Cable Connected, Electricity Connected, Fiber Optics, Phone Available, Public, Sewer Connected, Sprinkler Recycled, Underground Utilities, Water Connected
Vegetation
Trees/Landscaped
Water Source
Public
Waterfront YN
false
Window Features
Blinds, Low-Emissivity Windows, Window Treatments
Zoning
PD/AN
Neighborhood Map
Popup

Property Photos
Listing Photo
Listing Photo
Listing Photo
Listing Photo
Listing Photo
Listing Photo
Listing Photo
Listing Photo
Listing Photo
Listing Photo
Listing Photo
Listing Photo
Listing Photo
Listing Photo
Listing Photo
Listing Photo
Listing Photo
Listing Photo
Listing Photo
Listing Photo
Listing Photo
Listing Photo
Listing Photo
Listing Photo
Listing Photo
Listing Photo
Listing Photo
Listing Photo
Listing Photo
Listing Photo
Listing Photo
Listing Photo
Listing Photo
Listing Photo
Listing Photo
Listing Photo
Listing Photo
Listing Photo
Listing Photo
Listing Photo
Listing Photo
Listing Photo
Listing Photo
Listing Photo
Listing Photo
Listing Photo
Listing Photo
Listing Photo
Listing Photo
Listing Photo
Listing Photo
Listing Photo
Listing Photo
Listing Photo
Listing Photo
Listing Photo
Listing Photo
Listing Photo
Listing Photo
Listing Photo
Listing Photo
Listing Photo
Listing Photo
Listing Photo
Listing Photo
Listing Photo
Listing Photo
Listing Photo
Listing Photo
Listing Photo
Listing Photo
Listing Photo
Listing Photo
Listing Photo
Listing Photo
Listing Photo
Listing Photo
Listing Photo
Listing Photo
Listing Photo
Listing Photo
Listing Photo
Listing Photo
Listing Photo
Listing Photo
Listing Photo
Listing Photo
Listing Photo
Listing Photo
Listing Photo
Listing Photo
Listing Photo
Listing Photo
Listing Photo
Listing Photo
Listing Photo
Listing Photo
Listing Photo
Listing Photo
Listing Photo
Listing Photo
Listing Photo
Listing Photo
Listing Photo
Listing Photo
Listing Photo
Listing Photo
Listing Photo

MLS #MFRO6394176 Listing courtesy of Exp Realty Llc provided by Stellar MLS.

Similar Listings

$894,900
8274 Nemours Parkway
Orlando
5BR/4BA
| Active
$898,000
3569 Bellington Drive
Orlando
5BR/4BA
| Active
$899,000
4360 Sunset Preserve Boulevard
Orlando
5BR/4BA
| Active
$899,000
149 Purcell Drive
Orlando
5BR/4BA
| Pending



All listing information is deemed reliable but not guaranteed and should be independently verified through personal inspection by appropriate professionals. Listings displayed on this website may be subject to prior sale or removal from sale; availability of any listing should always be independent verified. Listing information is provided for consumer personal, non-commercial use, solely to identify potential properties for potential purchase; all other use is strictly prohibited and may violate relevant federal and state law. The source of the listing data is as follows: Stellar MLS (updated 4/16/26 7:36 PM) |

Listing Search



Translate Tool

Featured Listings
Altamonte Springs Real Estate
$1,175,000
3 BED
3 BATH
Welcome home to 629 Mariner Way, where true lakefront luxury meets timeless Mediterranean elegance on the shores of Lake... Read More
Altamonte Springs Real Estate
$1,399,000
4 BED
5 BATH
Welcome to this beautifully crafted home built in 2004, located in the private, gated community of Spring Lake Pointe, j... Read More
Altamonte Springs Real Estate
$1,456,000
3 BED
3 BATH
Welcome to this exceptional and architecturally stunning, state-of-the-art smart home with resort-style pool! A one-of-a... Read More
Apopka Real Estate
$3,200,000
4 BED
3 BATH
An extraordinary opportunity to own a private retreat on over 10+ acres in one of Apopka’s most desirable and rapidly gr... Read More
Apopka Real Estate
$1,395,000
4 BED
2 BATH
Fabulous Bear Lake Home with 85' of pristine waterfrontage and sweeping views of incredible 310-acre Bear Lake! Every in... Read More
Apopka Real Estate
$1,000,000
7 BED
8 BATH
An exceptional investment opportunity awaits with this beautifully maintained, five-unit residential enclave. Nestled on... Read More
Apopka Real Estate
$1,100,000
5 BED
4 BATH
Pre-Construction. To be built. Pre-Construction. Welcome to your dream home in Apopka, FL—where you still have the oppor... Read More
Apopka Real Estate
$1,100,000
4 BED
3 BATH
One or more photo(s) has been virtually staged. This Hacienda is located on the 14th hole within the gated community of ... Read More
Apopka Real Estate
$1,790,000
4 BED
3 BATH
** Zoning allows for developers and investors to build small subdivision; up to 2 house allowed on an acre. ** Sprawling... Read More
Contact Wendy Morris

407-575-5392

Wendy Morris LLC

Licensed in the State of Florida
BK 3146762
16797 Broadwater Avenue
Winter Garden, Florida 34787

Your privacy is our utmost concern. We will never sell your personal information. Privacy Policy
©2026 windermereluxuryproperty.com - all rights reserved. | Site Map