1-407-575-5392
Menu

6728 19th N Street, St Petersburg, FL

NEXT
PREV
$395,000

($230/sqft)

List Status: Pending
6728 19th N Street
St Petersburg, FL 33702


4 beds
3 baths
1720 living sqft
Top Features
  • Subdivision: Meadow Lawn 12th Add
  • Built in  1960
  • Single Family Residence
Description
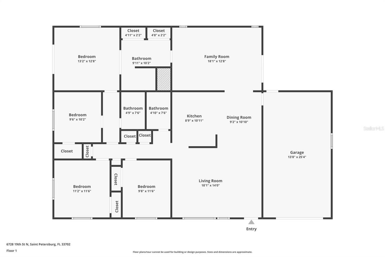
Welcome to this lovingly maintained 4-bedroom, 3-bathroom home in the heart of St. Petersburg, proudly owned by the original owner since 1963. Perfectly located just minutes from vibrant 4th Street with its shopping, dining, and everyday conveniences, this property offers space, character, and an unbeatable location. Step inside to discover a spacious open-concept layout featuring a bright kitchen that flows seamlessly into the living and dining areas — ideal for both entertaining and everyday living. The thoughtfully designed floor plan also includes a separate family room, offering additional space for relaxation, a media room, or a play area. The primary suite and additional bedrooms provide comfort and flexibility for family, guests, or a home office setup. With three full bathrooms, mornings are effortless and accommodating for everyone. Situated on an oversized 116' x 114' lot, this property offers a fully fenced backyard designed for privacy and enjoyment. The large yard features a private pool — perfect for weekend gatherings, summer barbecues, or simply unwinding in your own Florida retreat. A one-car garage adds convenience and additional storage. For added peace of mind, a recent 4-point inspection report is available. Roof 2012, solar panels (paid off) installed 2016, HVAC 2021, water heater 2021 This is a rare opportunity to own a spacious, well-cared-for home with decades of pride in ownership — all in a prime St. Petersburg location. Schedule your private showing today!
Property Details
Additional Information
Additional Lease Restrictions
Confirm with City/County
Additional Parcels YN
false
Alternate Key Folio Num
363016568260670330
Appliances
Dishwasher, Dryer, Microwave, Range, Washer
Association YN
false
Attached Garage YN
true
Available For Lease YN
1
Bathrooms Total Integer
3
Building Area Source
Public Records
Building Area Total
2151
Building Area Total Srch SqM
199.83
Building Area Units
Square Feet
Calculated List Price By Calculated SqFt
229.65
Carport YN
false
Construction Materials
Stucco
Contract Status
Appraisal, Financing, Inspections
Cooling
Central Air
Country
US
Cumulative Days On Market
4
Current Price
395000.00
Direction Faces
Southeast
Elementary School
Lynch Elementary-PN
Expected Closing Date
2026-04-02T00:00:00.000
Exterior Features
Sidewalk
Fireplace YN
false
Flood Zone Code
X
Flood Zone Date
2021-08-24
Flood Zone Panel
12103C0208J
Flooring
Carpet, Tile
Foundation Details
Slab
Furnished
Unfurnished
Garage Spaces
1
Garage YN
true
Green Energy Generation
Solar
Green Water Conservation
Irrigation-Reclaimed Water
Heating
Central
High School
Northeast High-PN
Homestead YN
1
Interior Features
Ceiling Fans(s), Eat-in Kitchen, Living Room/Dining Room Combo, Open Floorplan
Internet Address Display YN
true
Internet Automated Valuation Display YN
false
Internet Consumer Comment YN
false
Internet Entire Listing Display YN
true
Laundry Features
In Garage
Levels
One
List AOR
Suncoast Tampa
Living Area Meters
159.79
Living Area Source
Public Records
Living Area Units
Square Feet
Lot Size Acres
0.28
Lot Size Dimensions
116x114
Lot Size Square Feet
12062
Lot Size Square Meters
1121
Middle Or Junior School
Meadowlawn Middle-PN
Minimum Lease
No Minimum
Modification Timestamp
2026-03-03T11:44:09.164Z
New Construction YN
false
Occupant Type
Owner
Ownership
Fee Simple
Parcel Number
36-30-16-56826-067-0330
Pet Restrictions
Confirm with City/County
Pool Private YN
true
Postal Code Plus 4
6433
Previous List Price
375000
Price Change Timestamp
2026-02-26T14:09:22.000Z
Public Survey Range
16
Public Survey Section
36
Purchase Contract Date
2026-03-02
RATIO Current Price By Calculated SqFt
229.65
Road Surface Type
Paved
Roof
Shingle
Room Count
8
Senior Community YN
false
Sewer
Public Sewer
Showing Requirements
Supra Lock Box
Status Change Timestamp
2026-03-03T11:43:08.000Z
Stories Total
1
Tax Annual Amount
1564.34
Tax Block
67
Tax Book Number
53-68
Tax Legal Description
MEADOW LAWN 12TH ADD BLK 67, LOT 33
Tax Lot
33
Tax Year
2024
Total Acreage
1/4 to less than 1/2
Total Annual Fees
0.00
Total Monthly Fees
0.00
Township
30
Universal Property Id
US-12103-N-363016568260670330-R-N
Unparsed Address
6728 19TH ST N
Utilities
Electricity Connected, Sewer Connected, Water Connected
Water Source
Public
Waterfront YN
false
Neighborhood Map
Popup

Property Photos
Listing Photo
Listing Photo
Listing Photo
Listing Photo
Listing Photo
Listing Photo
Listing Photo
Listing Photo
Listing Photo
Listing Photo
Listing Photo
Listing Photo
Listing Photo
Listing Photo
Listing Photo
Listing Photo
Listing Photo
Listing Photo
Listing Photo
Listing Photo
Listing Photo
Listing Photo
Listing Photo
Listing Photo
Listing Photo
Listing Photo
Listing Photo
Listing Photo
Listing Photo
Listing Photo
Listing Photo
Listing Photo
Listing Photo
Listing Photo
Listing Photo
Listing Photo
Listing Photo
Listing Photo
Listing Photo
Listing Photo
Listing Photo
Listing Photo
Listing Photo
Listing Photo
Listing Photo
Listing Photo
Listing Photo
Listing Photo
Listing Photo
Listing Photo
Listing Photo
Listing Photo
Listing Photo
Listing Photo
Listing Photo
Listing Photo
Listing Photo
Listing Photo
Listing Photo
Listing Photo
Listing Photo
Listing Photo
Listing Photo
Listing Photo
Listing Photo
Listing Photo
Listing Photo
Listing Photo
Listing Photo
Listing Photo
Listing Photo
Listing Photo
Listing Photo
Listing Photo
Listing Photo
Listing Photo
Listing Photo
Listing Photo
Listing Photo
Listing Photo
Listing Photo
Listing Photo
Listing Photo
Listing Photo
Listing Photo
Listing Photo
Listing Photo
Listing Photo
Listing Photo
Listing Photo
Listing Photo
Listing Photo
Listing Photo
Listing Photo
Listing Photo
Listing Photo
Listing Photo
Listing Photo

MLS #MFRTB8475021 Listing courtesy of Keller Williams Tampa Prop. provided by Stellar MLS.

Similar Listings

$378,999
517 41st S Avenue
St Petersburg
4BR/3BA
| Active
$385,000
4511 Huntington Ne Street
St Petersburg
4BR/3BA
| Active
$389,900
217 43rd Ne Avenue
St Petersburg
4BR/3BA
| Active
$399,000
5050 Emerson S Avenue
St Petersburg
4BR/3BA
| Pending



All listing information is deemed reliable but not guaranteed and should be independently verified through personal inspection by appropriate professionals. Listings displayed on this website may be subject to prior sale or removal from sale; availability of any listing should always be independent verified. Listing information is provided for consumer personal, non-commercial use, solely to identify potential properties for potential purchase; all other use is strictly prohibited and may violate relevant federal and state law. The source of the listing data is as follows: Stellar MLS (updated 3/12/26 6:34 PM) |

Listing Search



Translate Tool

Featured Listings
Altamonte Springs Real Estate
$1,450,000
4 BED
5 BATH
Welcome to this beautifully crafted home built in 2004, located in the private, gated community of Spring Lake Pointe, j... Read More
Altamonte Springs Real Estate
$1,094,926
4 BED
3 BATH
Altamonte Springs Real Estate
$1,350,000
5 BED
4 BATH
New updates, sellers have completed substantial capital improvements, including three new 2026 Trane17 SEER HVAC systems... Read More
Altamonte Springs Real Estate
$1,138,630
5 BED
4 BATH
Pre-Construction. To be built. . Read More
Altamonte Springs Real Estate
$1,456,000
3 BED
3 BATH
Welcome to this exceptional and architecturally stunning, state-of-the-art smart home with resort-style pool! A one-of-a... Read More
Apopka Real Estate
$1,395,000
4 BED
2 BATH
Fabulous Bear Lake Home with 85' of pristine waterfrontage and sweeping views of incredible 310-acre Bear Lake! Every in... Read More
Apopka Real Estate
$1,400,000
2 BED
2 BATH
PRIME RESIDENTIAL-TO-COMMERCIAL OPPORTUNITY! Seller financing available! This 2.4-acre property, consisting of three par... Read More
Apopka Real Estate
$1,400,000
2 BED
2 BATH
PRIME RESIDENTIAL-TO-COMMERCIAL OPPORTUNITY! Seller Financing available! This 2.4-acre property, consisting of three par... Read More
Apopka Real Estate
$1,065,000
3 BED
1 BATH
One of the few remaining buildable lots on one of the best lakes in Central Florida. Bear Lake is a clear spring feed 31... Read More
Contact Wendy Morris

407-575-5392

Wendy Morris LLC

Licensed in the State of Florida
BK 3146762
16797 Broadwater Avenue
Winter Garden, Florida 34787

Your privacy is our utmost concern. We will never sell your personal information. Privacy Policy
©2026 windermereluxuryproperty.com - all rights reserved. | Site Map