1-407-575-5392
Menu

2530 34th N Avenue, St Petersburg, FL

NEXT
PREV
$780,000

($305/sqft)

List Status: Active
2530 34th N Avenue
St Petersburg, FL 33713


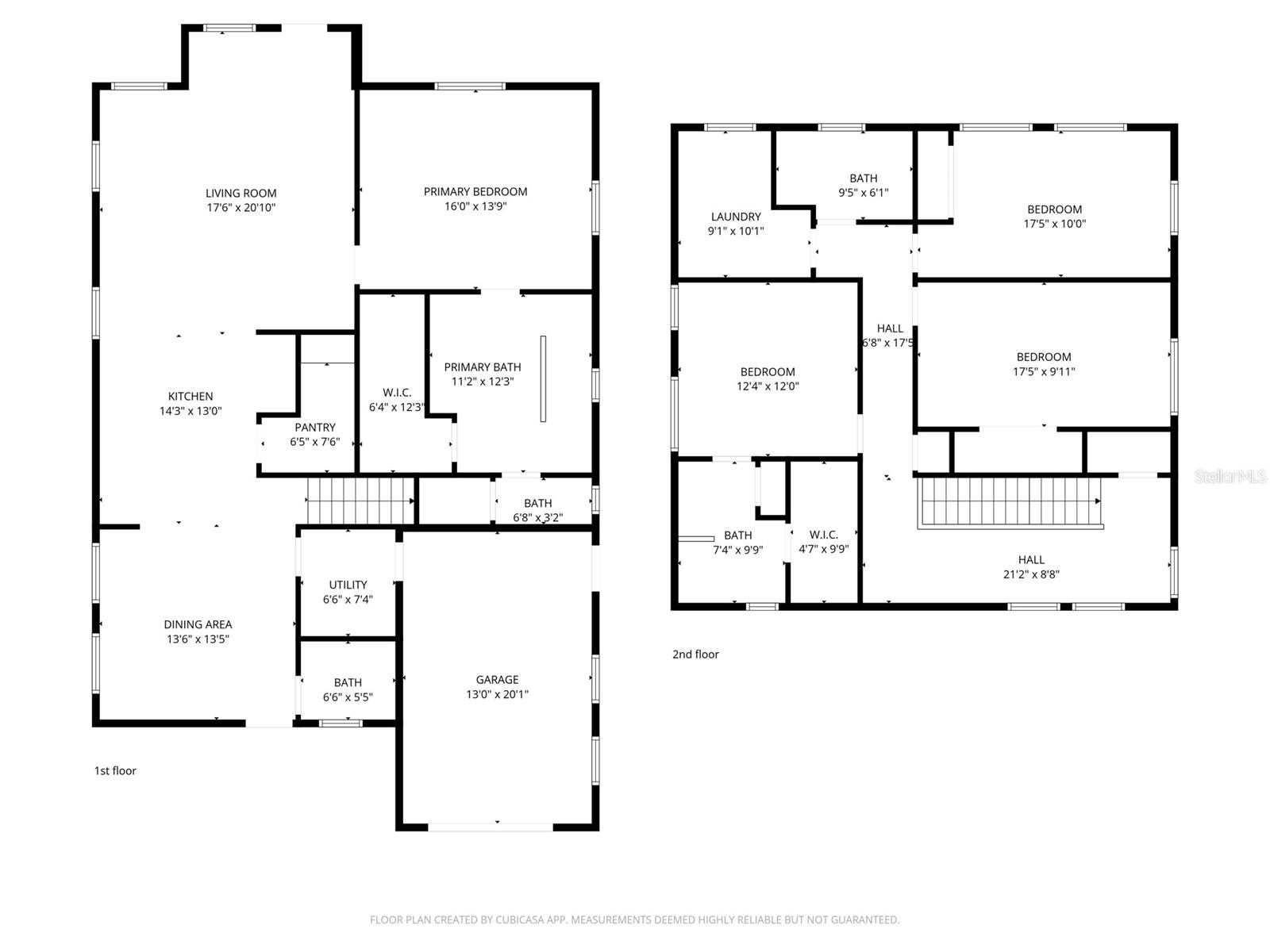
4 beds
3 baths
2559 living sqft
Top Features
  • Subdivision: Emerys 1 Sub
  • Built in  2025
  • Single Family Residence
Description
St. Pete Heights Stunner! Welcome to this exceptional BRAND-NEW CONSTRUCTION by BAY AREA BUILDS, ideally located in a NON-FLOOD ZONE in the heart of St. Pete Heights. Thoughtfully designed for modern living, this beautifully crafted residence offers 4 spacious bedrooms and 3.5 baths with a functional, well-planned layout and abundant storage throughout. Designed with entertaining in mind, the open-concept kitchen features all-wood cabinetry, striking countertops, stainless steel appliances, and a generous walk-in pantry—perfect for both everyday living and hosting guests. Elegant tilework and curated designer finishes elevate the space, creating a polished and cohesive aesthetic. The FIRST FLOOR PRIMARY SUITE is impressively sized and offers a walk-in closet with custom shelving, along with a spa-inspired bath complete with an oversized soaking tub and a walk-through shower. Upstairs, you’ll find an additional en-suite bedroom featuring double vanities, a beautifully tiled shower, and a walk-in closet. Two more upstairs bedrooms are equally spacious and versatile, ideal for guests, family, or a home office. Convenience is key with TWO LAUNDRY ROOMS, providing flexibility and ease for multi-level living. Additional highlights include a one-car garage with alley access and additional off-street parking, ample storage throughout the home, a layout that maximizes both privacy and functionality and a builders 2-10 Home Warranty. Situated in a non-flood zone, this home offers peace of mind along with refined design and quality craftsmanship. A rare opportunity to own a stylish, move-in-ready new construction just minutes from downtown St. Pete, parks, shopping, dining, and more.
Property Details
Additional Information
Additional Lease Restrictions
See city restrictions on leasing
Additional Parcels YN
false
Alternate Key Folio Num
31-16-11-25812-000-0101
Appliances
Dishwasher, Disposal, Electric Water Heater, Microwave, Range, Range Hood, Refrigerator
Association YN
false
Attached Garage YN
true
Available For Lease YN
1
Bathrooms Total Integer
4
Building Area Source
Builder
Building Area Total
3149
Building Area Total Srch SqM
292.55
Building Area Units
Square Feet
Calculated List Price By Calculated SqFt
304.81
Carport YN
false
Construction Materials
Block, Stucco, Frame
Cooling
Central Air
Country
US
Cumulative Days On Market
81
Current Price
780000.00
Direction Faces
North
Elementary School
New Heights Elementary-PN
Exterior Features
Rain Gutters, Sidewalk
Fireplace YN
false
Flood Zone Code
X
Flood Zone Date
2003-09-03
Flood Zone Panel
12103C0216G
Flooring
Luxury Vinyl, Tile
Foundation Details
Slab
Furnished
Unfurnished
Garage Spaces
1
Garage YN
true
Heating
Central
High School
St. Petersburg High-PN
Interior Features
High Ceilings, Open Floorplan, Primary Bedroom Main Floor, PrimaryBedroom Upstairs, Solid Wood Cabinets, Stone Counters
Internet Address Display YN
true
Internet Automated Valuation Display YN
false
Internet Consumer Comment YN
false
Internet Entire Listing Display YN
true
Laundry Features
Laundry Room
Levels
Two
List AOR
Suncoast Tampa
Living Area Meters
237.74
Living Area Source
Builder
Living Area Units
Square Feet
Lot Size Acres
0.13
Lot Size Square Feet
5837
Lot Size Square Meters
542
Middle Or Junior School
Tyrone Middle-PN
Minimum Lease
No Minimum
Modification Timestamp
2026-03-10T19:11:09.698Z
New Construction YN
true
Occupant Type
Vacant
Other Equipment
Irrigation Equipment
Ownership
Fee Simple
Parcel Number
11-31-16-25812-000-0101
Pool Private YN
false
Previous List Price
799000
Price Change Timestamp
2026-03-10T19:10:26.000Z
Property Condition
Completed
Public Survey Range
16
Public Survey Section
11
RATIO Current Price By Calculated SqFt
304.81
Road Surface Type
Paved
Roof
Shingle
Room Count
7
Senior Community YN
false
Sewer
Public Sewer
Showing Requirements
Supra Lock Box, Appointment Only, ShowingTime
Status Change Timestamp
2025-12-20T01:25:27.000Z
Tax Annual Amount
2275
Tax Book Number
22-88
Tax Legal Description
EMERY'S NO 1 SUB E 56.27FT OF LOT 10
Tax Lot
10
Tax Year
2024
Total Acreage
0 to less than 1/4
Total Annual Fees
0.00
Total Monthly Fees
0.00
Township
31
Universal Property Id
US-12103-N-113116258120000101-R-N
Unparsed Address
2530 34TH AVE N
Utilities
Public
Water Source
Public
Waterfront YN
false
Neighborhood Map
Popup

Property Photos
Listing Photo
Listing Photo
Listing Photo
Listing Photo
Listing Photo
Listing Photo
Listing Photo
Listing Photo
Listing Photo
Listing Photo
Listing Photo
Listing Photo
Listing Photo
Listing Photo
Listing Photo
Listing Photo
Listing Photo
Listing Photo
Listing Photo
Listing Photo
Listing Photo
Listing Photo
Listing Photo
Listing Photo
Listing Photo
Listing Photo
Listing Photo
Listing Photo
Listing Photo
Listing Photo
Listing Photo
Listing Photo
Listing Photo
Listing Photo
Listing Photo
Listing Photo
Listing Photo
Listing Photo
Listing Photo
Listing Photo
Listing Photo
Listing Photo
Listing Photo
Listing Photo
Listing Photo
Listing Photo
Listing Photo
Listing Photo
Listing Photo
Listing Photo
Listing Photo
Listing Photo
Listing Photo
Listing Photo
Listing Photo
Listing Photo
Listing Photo
Listing Photo
Listing Photo
Listing Photo
Listing Photo
Listing Photo
Listing Photo
Listing Photo
Listing Photo
Listing Photo
Listing Photo
Listing Photo
Listing Photo
Listing Photo
Listing Photo
Listing Photo
Listing Photo
Listing Photo
Listing Photo
Listing Photo
Listing Photo
Listing Photo
Listing Photo
Listing Photo
Listing Photo
Listing Photo
Listing Photo
Listing Photo
Listing Photo
Listing Photo
Listing Photo
Listing Photo
Listing Photo
Listing Photo
Listing Photo
Listing Photo
Listing Photo
Listing Photo

MLS #MFRTB8456899 Listing courtesy of Keller Williams St Pete Realty provided by Stellar MLS.

Similar Listings

$719,000
260 13th N Street
St Petersburg
4BR/3BA
| Active
$719,000
5282 White Sand Ne Circle
St Petersburg
4BR/3BA
| Active
$725,000
1460 89th N Avenue
St Petersburg
4BR/3BA
| Active
$735,000
6505 Cedar Ne Street
St Petersburg
4BR/3BA
| Active



All listing information is deemed reliable but not guaranteed and should be independently verified through personal inspection by appropriate professionals. Listings displayed on this website may be subject to prior sale or removal from sale; availability of any listing should always be independent verified. Listing information is provided for consumer personal, non-commercial use, solely to identify potential properties for potential purchase; all other use is strictly prohibited and may violate relevant federal and state law. The source of the listing data is as follows: Stellar MLS (updated 3/12/26 7:33 AM) |

Listing Search



Translate Tool

Featured Listings
Altamonte Springs Real Estate
$1,450,000
4 BED
5 BATH
Welcome to this beautifully crafted home built in 2004, located in the private, gated community of Spring Lake Pointe, j... Read More
Altamonte Springs Real Estate
$1,094,926
4 BED
3 BATH
Altamonte Springs Real Estate
$1,350,000
5 BED
4 BATH
New updates, sellers have completed substantial capital improvements, including three new 2026 Trane17 SEER HVAC systems... Read More
Altamonte Springs Real Estate
$1,138,630
5 BED
4 BATH
Pre-Construction. To be built. . Read More
Altamonte Springs Real Estate
$1,456,000
3 BED
3 BATH
Welcome to this exceptional and architecturally stunning, state-of-the-art smart home with resort-style pool! A one-of-a... Read More
Apopka Real Estate
$1,395,000
4 BED
2 BATH
Fabulous Bear Lake Home with 85' of pristine waterfrontage and sweeping views of incredible 310-acre Bear Lake! Every in... Read More
Apopka Real Estate
$1,400,000
2 BED
2 BATH
PRIME RESIDENTIAL-TO-COMMERCIAL OPPORTUNITY! Seller financing available! This 2.4-acre property, consisting of three par... Read More
Apopka Real Estate
$1,400,000
2 BED
2 BATH
PRIME RESIDENTIAL-TO-COMMERCIAL OPPORTUNITY! Seller Financing available! This 2.4-acre property, consisting of three par... Read More
Apopka Real Estate
$1,065,000
3 BED
1 BATH
One of the few remaining buildable lots on one of the best lakes in Central Florida. Bear Lake is a clear spring feed 31... Read More
Contact Wendy Morris

407-575-5392

Wendy Morris LLC

Licensed in the State of Florida
BK 3146762
16797 Broadwater Avenue
Winter Garden, Florida 34787

Your privacy is our utmost concern. We will never sell your personal information. Privacy Policy
©2026 windermereluxuryproperty.com - all rights reserved. | Site Map