1-407-575-5392
Menu

1061 Pinellas Bayway S, St Petersburg, FL

NEXT
PREV
$599,000

($268/sqft)

List Status: Active
1061 Pinellas Bayway S
St Petersburg, FL 33715


3 beds
3 baths
2236 living sqft
Top Features
  • View: Pool
  • Subdivision: Tierra Sound Twnhms
  • Built in  1999
  • Townhouse
Description
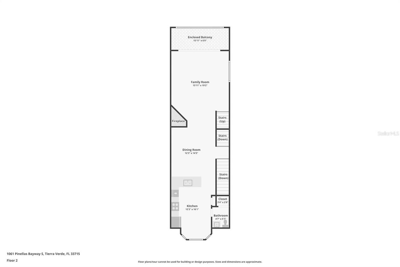
MOTIVATED SELLER! Price Improved. Your Island Lifestyle Starts Here. Paradise Awaits Now at an Incredible New Price! Welcome to an unparalleled opportunity to own a piece of paradise in the highly sought-after island community of Tierra Verde. This exquisite 3-bedroom, 3.5-bathroom townhouse, an exclusive end unit within the desirable Tierra Sound Townhomes, presents a harmonious blend of luxurious living and an idyllic coastal lifestyle. From the moment you step inside, you'll be captivated by the breathtaking views of the community pool, visible from the family room, and two expansive private balconies. This home is not just a residence; it's a gateway to the serene and vibrant life that Tierra Verde so perfectly embodies. Coastal Charm: Experience a tranquil yet vibrant coastal lifestyle in this picturesque island community, known for its lush landscapes, pristine waters, and welcoming atmosphere. Outdoor Recreation: Just a short bike ride away, you'll find the world-renowned Fort De Soto Park, an expansive natural preserve featuring miles of sandy beaches, scenic picnic areas, and extensive trails perfect for biking, hiking, and kayaking. The park also boasts a historic fort, adding a touch of local history to your outdoor adventures. Convenient Access: Enjoy the perfect balance of secluded island living with the convenience of urban amenities. Tierra Verde provides quick access to the interstate, making commutes to downtown St. Petersburg a breeze. Explore cultural attractions like the Salvador Dalí Museum and the Museum of Fine Arts, or indulge in the lively downtown area's shops, restaurants, and nightlife. Dining & Shopping: The island features a delightful mix of local flavors and charming boutiques. Savor laid-back atmospheres at favorites like Billy’s Stone Crab and The Island Grille & Raw Bar, or enjoy upscale waterfront dining options. For more extensive shopping, St. Pete Beach and downtown St. Petersburg are just a short drive away. Recent Upgrades: E
Property Details
Additional Information
Additional Lease Restrictions
Check with HOA. Lease in accordance with local zoning ordinance.
Additional Parcels YN
false
Additional Rooms
Formal Dining Room Separate, Great Room, Inside Utility
Appliances
Dishwasher, Disposal, Electric Water Heater, Exhaust Fan, Range, Refrigerator
Approval Process
Board approval required. Lease application fee required.
Architectural Style
Florida
Association Approval Required YN
1
Association Email
hoa@wcmanagement.info
Association Fee
542.85
Association Fee Frequency
Monthly
Association Fee Includes
Pool, Escrow Reserves Fund, Insurance, Maintenance Structure, Maintenance Grounds, Sewer, Trash, Water
Association Fee Requirement
Required
Association YN
true
Attached Garage YN
true
Available For Lease YN
1
Bathrooms Total Integer
4
Building Area Source
Public Records
Building Area Total
2236
Building Area Total Srch SqM
207.73
Building Area Units
Square Feet
Calculated List Price By Calculated SqFt
267.89
Carport YN
false
Community Features
Pool
Construction Materials
Block, Stucco
Cooling
Central Air
Country
US
Cumulative Days On Market
212
Current Price
599000.00
Direction Faces
North
Exterior Features
Balcony, Lighting, Sliding Doors
Fireplace Features
Family Room, Wood Burning
Fireplace YN
true
Flood Zone Code
x
Flooring
Epoxy, Laminate
Foundation Details
Slab
Furnished
Furnished
Garage Spaces
2
Garage YN
true
Heating
Central
Home Warranty YN
false
Homestead YN
1
Interior Features
Cathedral Ceiling(s), Ceiling Fans(s), Crown Molding, Eat-in Kitchen, High Ceilings, Kitchen/Family Room Combo, Open Floorplan, Solid Surface Counters, Solid Wood Cabinets, Split Bedroom, Vaulted Ceiling(s), Walk-In Closet(s), Window Treatments
Internet Address Display YN
true
Internet Automated Valuation Display YN
true
Internet Consumer Comment YN
false
Internet Entire Listing Display YN
true
Laundry Features
Inside
Lease Restrictions YN
1
Levels
Multi/Split
List AOR
Osceola
Living Area Meters
207.73
Living Area Source
Public Records
Living Area Units
Square Feet
Lot Features
Paved
Lot Size Acres
0.02
Lot Size Square Feet
1015
Lot Size Square Meters
94
Minimum Lease
6 Months
Modification Timestamp
2026-02-02T11:53:18.927Z
Monthly HOA Amount
542.85
New Construction YN
false
Num Times per Year
2
Occupant Type
Owner
Ownership
Fee Simple
Parcel Number
20-32-16-90822-000-0090
Patio And Porch Features
Covered, Deck, Patio, Porch, Screened
Pets Allowed
Yes
Pool Private YN
false
Postal Code Plus 4
2112
Property Description
Corner Unit, End Unit
Public Survey Range
16
Public Survey Section
20
RATIO Current Price By Calculated SqFt
267.89
Realtor Info
As-Is, Docs Available
Road Surface Type
Asphalt
Roof
Tile
Room Count
4
Security Features
Fire Sprinkler System, Smoke Detector(s)
Senior Community YN
false
Sewer
Public Sewer
Showing Requirements
Lockbox, ShowingTime
Status Change Timestamp
2026-02-01T23:33:26.000Z
Stories Total
3
Tax Annual Amount
4175
Tax Book Number
115-79
Tax Legal Description
TIERRA SOUND TOWNHOMES LOT 9
Tax Lot
9
Tax Year
2024
Total Acreage
0 to less than 1/4
Total Annual Fees
6514.20
Total Monthly Fees
542.85
Township
32
Universal Property Id
US-12103-N-203216908220000090-R-N
Unparsed Address
1061 PINELLAS BAYWAY S
Utilities
BB/HS Internet Available, Cable Available, Public
Vegetation
Trees/Landscaped
Water Source
Public
Waterfront YN
false
Window Features
Skylight(s), Blinds, Window Treatments
Zoning
RM-15
Neighborhood Map
Popup

Property Photos
Listing Photo
Listing Photo
Listing Photo
Listing Photo
Listing Photo
Listing Photo
Listing Photo
Listing Photo
Listing Photo
Listing Photo
Listing Photo
Listing Photo
Listing Photo
Listing Photo
Listing Photo
Listing Photo
Listing Photo
Listing Photo
Listing Photo
Listing Photo
Listing Photo
Listing Photo
Listing Photo
Listing Photo
Listing Photo
Listing Photo
Listing Photo
Listing Photo
Listing Photo
Listing Photo
Listing Photo
Listing Photo
Listing Photo
Listing Photo
Listing Photo
Listing Photo
Listing Photo
Listing Photo
Listing Photo
Listing Photo
Listing Photo
Listing Photo
Listing Photo
Listing Photo
Listing Photo
Listing Photo
Listing Photo
Listing Photo
Listing Photo
Listing Photo
Listing Photo
Listing Photo
Listing Photo
Listing Photo
Listing Photo
Listing Photo
Listing Photo
Listing Photo
Listing Photo
Listing Photo
Listing Photo
Listing Photo
Listing Photo
Listing Photo
Listing Photo
Listing Photo
Listing Photo
Listing Photo
Listing Photo
Listing Photo
Listing Photo
Listing Photo
Listing Photo
Listing Photo
Listing Photo
Listing Photo
Listing Photo
Listing Photo
Listing Photo
Listing Photo
Listing Photo
Listing Photo
Listing Photo
Listing Photo
Listing Photo
Listing Photo
Listing Photo
Listing Photo
Listing Photo
Listing Photo
Listing Photo
Listing Photo
Listing Photo
Listing Photo
Listing Photo
Listing Photo
Listing Photo
Listing Photo
Listing Photo
Listing Photo
Listing Photo
Listing Photo
Listing Photo
Listing Photo
Listing Photo
Listing Photo
Listing Photo
Listing Photo
Listing Photo
Listing Photo
Listing Photo
Listing Photo
Listing Photo
Listing Photo
Listing Photo
Listing Photo
Listing Photo
Listing Photo
Listing Photo
Listing Photo
Listing Photo
Listing Photo
Listing Photo
Listing Photo
Listing Photo
Listing Photo
Listing Photo
Listing Photo
Listing Photo
Listing Photo
Listing Photo
Listing Photo
Listing Photo
Listing Photo
Listing Photo
Listing Photo
Listing Photo
Listing Photo
Listing Photo
Listing Photo
Listing Photo
Listing Photo

MLS #MFRS5142908 Listing courtesy of My Realty Group, Llc. provided by Stellar MLS.

Similar Listings

$539,900
675 64th S Avenue
St Petersburg
3BR/3BA
| Active
$540,000
218 49th N Avenue
St Petersburg
3BR/3BA
| Active
$569,000
3631 4th N Avenue
St Petersburg
3BR/3BA
| Active
$569,000
4140 14th S Avenue
St Petersburg
3BR/3BA
| Pending



All listing information is deemed reliable but not guaranteed and should be independently verified through personal inspection by appropriate professionals. Listings displayed on this website may be subject to prior sale or removal from sale; availability of any listing should always be independent verified. Listing information is provided for consumer personal, non-commercial use, solely to identify potential properties for potential purchase; all other use is strictly prohibited and may violate relevant federal and state law. The source of the listing data is as follows: Stellar MLS (updated 2/11/26 8:16 AM) |

Listing Search



Translate Tool

Featured Listings
Altamonte Springs Real Estate
$1,350,000
5 BED
4 BATH
New updates, sellers have completed substantial capital improvements, including three new 2026 Trane17 SEER HVAC systems... Read More
Altamonte Springs Real Estate
$1,599,000
4 BED
5 BATH
Welcome to this beautifully crafted home built in 2004, located in the private, gated community of Spring Lake Pointe, j... Read More
Altamonte Springs Real Estate
$1,456,000
3 BED
3 BATH
Welcome to this exceptional and architecturally stunning, state-of-the-art smart home with resort-style pool! A one-of-a... Read More
Apopka Real Estate
$2,455,000
6 BED
6 BATH
Quiet Luxury- Exceptional Equestrian Living! This EQUESTRIAN ESTATE sits on 8.73 ACRES in the exclusive, gated community... Read More
Apopka Real Estate
$1,465,000
5 BED
5 BATH
Tucked away in one of Apopka’s best-kept secrets, this stunning six-bedroom, 5.5-bath estate is in a beautiful and seclu... Read More
Apopka Real Estate
$1,790,000
4 BED
3 BATH
** Zoning allows for developers and investors to build small subdivision; up to 2 house allowed on an acre. ** Sprawling... Read More
Apopka Real Estate
$1,150,000
3 BED
3 BATH
Enjoy this beautiful gated property in a country setting with all the conveniences of the city. This property offers 6+ ... Read More
Apopka Real Estate
$1,300,000
7 BED
8 BATH
Immediate rental income available! Don't miss out on this income opportunity investment with this 5 unit community prope... Read More
Apopka Real Estate
$2,700,000
4 BED
3 BATH
PRICE IMPROVEMENT on 10.10 ACRES OF VALUABLE LAND in the Proposed "Employment District" of the Kelly Park Development Pl... Read More
Contact Wendy Morris

407-575-5392

Wendy Morris LLC

Licensed in the State of Florida
BK 3146762
16797 Broadwater Avenue
Winter Garden, Florida 34787

Your privacy is our utmost concern. We will never sell your personal information. Privacy Policy
©2026 windermereluxuryproperty.com - all rights reserved. | Site Map